Information

pdf-download

Preise

Der Tagespreis für eine oder zwei Personen beträgt
bis 3 Übernachtungen 55,- Euro,
ab 3 Übernachtungen 50,- Euro inklusive Endreinigung. Handtücher, Tisch-,
und Bettwäsche gehören selbstverständlich zur Ausstattung.

Information
und Vermietung Ferienwohnung
"Im Steinbühl"

Helga Schwan
Steinbühlstraße 8
73614 Schorndorf - Buhlbronn
Tel. 07181 / 2 1378
Fax 07181/ 6 93 20
info@fewo-schorndorf.de
www.fewo-schorndorf.de

Aussichten auf beflügelnde Ferientage ...

... denn in der Ferienwohnung "Im Steinbühl" werden Sie die Höhenzüge des Remstals als besonders inspirierend erleben. Als willkommener Gast in einer Umgebung mit außergewöhnlicher Ausstrahlung.

Es erwartet Sie eine stimmungsvolle, für ein bis zwei Personen ausgestattete Ferienwohnung in der ruhigen Ortsrandlage von Schorndorf-Buhlbronn.

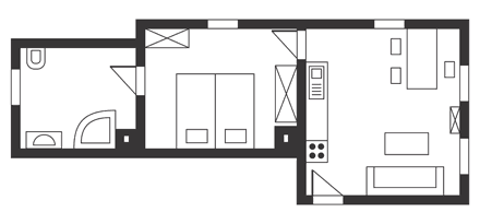
Die Einrichtung des kleinen, aber feinen Apartments
(40 qm) umfasst ein separates Schlafzimmer mit zwei geräumigen Schränken, sowie ein separates Wohnzimmer mit gemütlicher Coach, offener Küche und Essecke.
Grundriss Wohnung Schwan

Impressum

Helga Schwan
Steinbühlstraße8
73614 Schorndorf

Telefon: 07181/21378
Telefax: 07181/69320
eMail: info(at)fewo-schorndorf.de

Inhaltlich Verantwortlicher gemäß § 6 MDStV für diese Homepage:
Helga Schwan

Haftungsausschluß



Trotz sorgfältiger Kontrolle übernimmt der Autor keine Haftung dafür, dass die auf dieser Website bereitgestellten Informationen vollständig, richtig und in jedem Fall aktuell sind. Für Internetseiten Dritter, auf die wir mit Hyperlinks verweisen, tragen die jeweiligen Anbieter die Verantwortung. der Autor ist für den Inhalt solcher Seiten Dritter nicht verantwortlich. Die Webseiten des Autors können von anderen Seiten ohne unser Wissen verlinkt sein. der Autor übernimmt diesbezüglich keine Verantwortung für den Inhalt auf den Webseiten Dritter.